
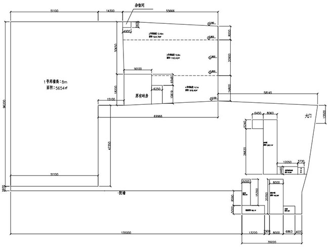
大兴青云店9000平米平库,面积共9000平米,其中办公住宿700平米,库房8300平米,库房檐高8米,空地4500平米。报价1.1含票。
【园区简介】
北京青云店项目占地13500平米,总建筑面积9000平米,办公住宿700平米,8300平米库房,整体建筑高度13米。园区内共有2栋建筑,由办公和库房组成,园区配套完善、资质齐全,适用于快递物流,仓储周转等多种仓储作业。
【位置交通优越】
库房位于北京市青云店,园区门口即为104国道,仅临北京亦庄开发区南六环,距离北京奔驰,小米汽车8公里,属于高端产业集群片区。
【园区优势】
建筑及相应配套设备设施完善,手续齐全,厂区24小时安保,24小时物业值班,拥有自己的物业配套服。
1100 平米
3000 平米
500 平米
700 平米
330 平米
6000 平米
5000 平米
5 亩
18000 平米
0 亩